Robert May Hall
Designated for graduate, law and medical students only, Robert May Hall is immediately adjacent to the Saint Louis University campus.
You get the independence of apartment living with proximity to SLU’s campus, the Billiken
Shuttle service and Grand Center. Units feature exposed brick, large loft-style windows,
granite countertops and maple cabinets.
About Robert May Hall
| Address: | 3331 Locust Street, St. Louis, MO 63103 |
| Amenities: | Cable, secured building with code access, laundry in unit |
| Additional special features: | Outdoor courtyard |
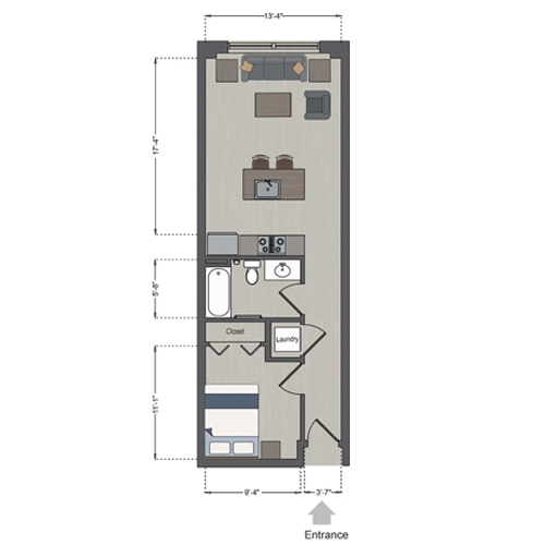
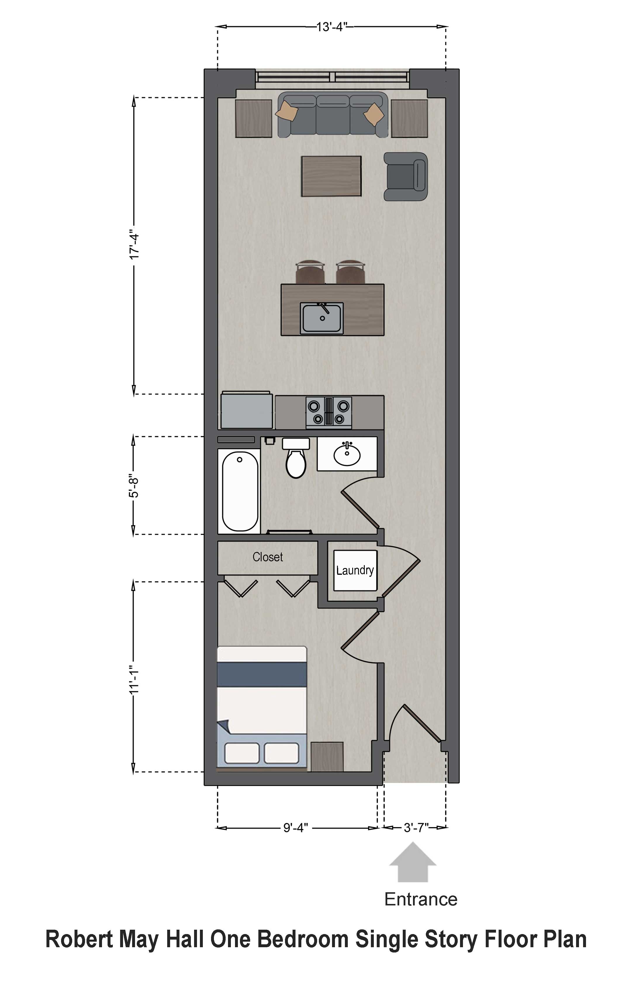
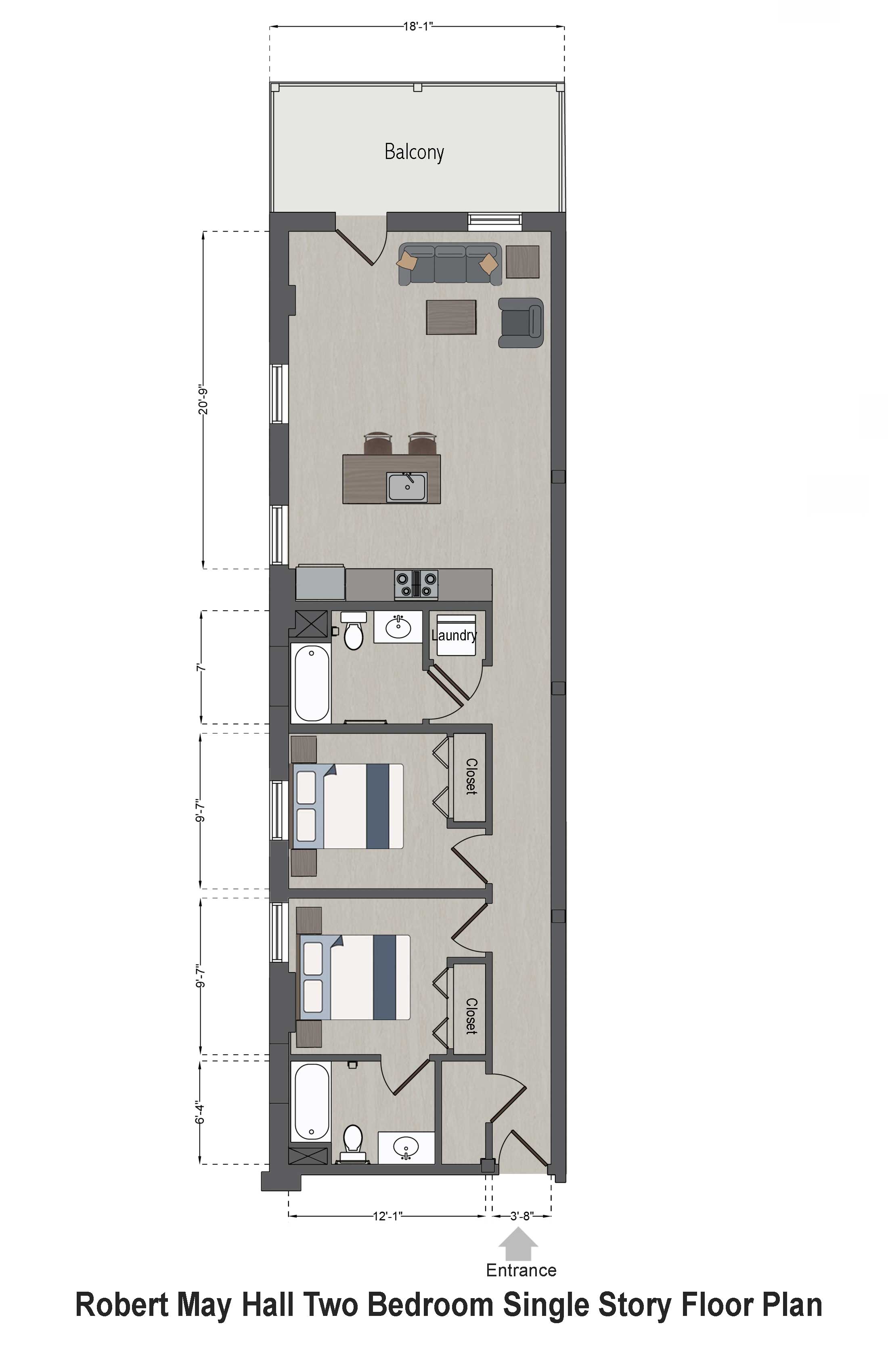
| Room types: | One-, two- and three-bedroom floor plans. All residents have private bedrooms. |
| Bathrooms: | Private |
| Dining: | Full kitchen in unit |
| Parking: | Secured gated parking |
| Population: | Up to 40 graduate and professional students |
| Visiting Restrictions: | None |
| Special Hours: | Robert May Hall is open year-round and does not close for any break periods. |
Floor Plans
What's in the Unit?
- Full-sized bed
- Dressers
- Sofa and armchair
- Coffee table
- Full kitchen with stainless steel refrigerator, dishwasher and microwave
- Front-load, stackable washer/dryer provided in each unit
- Granite countertops
- Maple cabinetry
What to Bring
The basics are already in the unit but what you pack will help make it your own. Learn what to bring — and what to leave at home — in our guide to outfitting your space.






















